×
г. Москва, метро “Китай город”, ул. Яузская, дом 15/11
+7 987 654-32-10info@constructor.ru
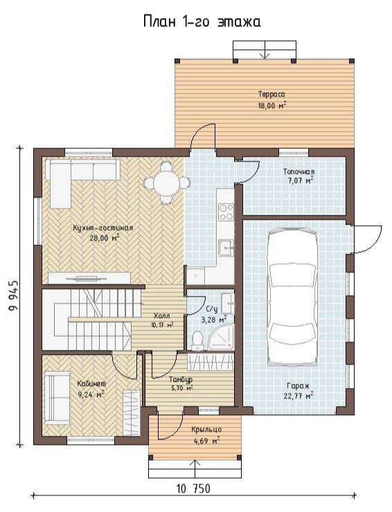
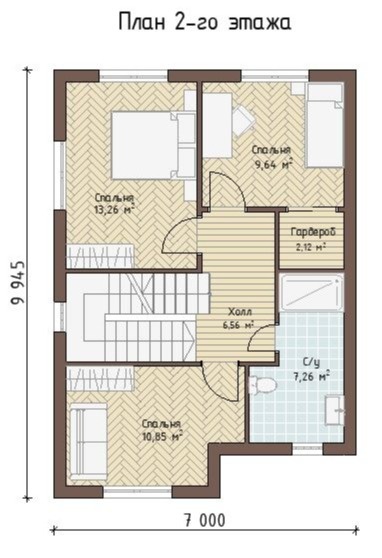
Проект дома 318
Почему с нами надежно
  • Фиксированная цена
    Стоимость строительства не меняется после заключения договора
  • Еженедельный фотоотчёт
    Вам не нужно приезжать на стройку — фотографии со стройки каждую неделю в личном кабинете
  • Поэтапная оплата
    Вам не придется вносить всю сумму сразу
Ваш заказ
  • image alt
    POWER Full 14
    POWER Full 14
    1000
  • image alt
    POWER Full 14
    POWER Full 14
    2000
3000
Выберите вариант доставки

Оставляя заявку, вы соглашаетесь на обработку персональных данных и с условиями бронирования счёта

2
Craftum Конструктор сайтов Craftum